中文网English
当前位置:首页>最新通知

关于紫金港校区西一灯光排球场改造迷你高尔夫球场公示的通告

编辑:wang 发布时间:2014-05-19 访问次数:6520

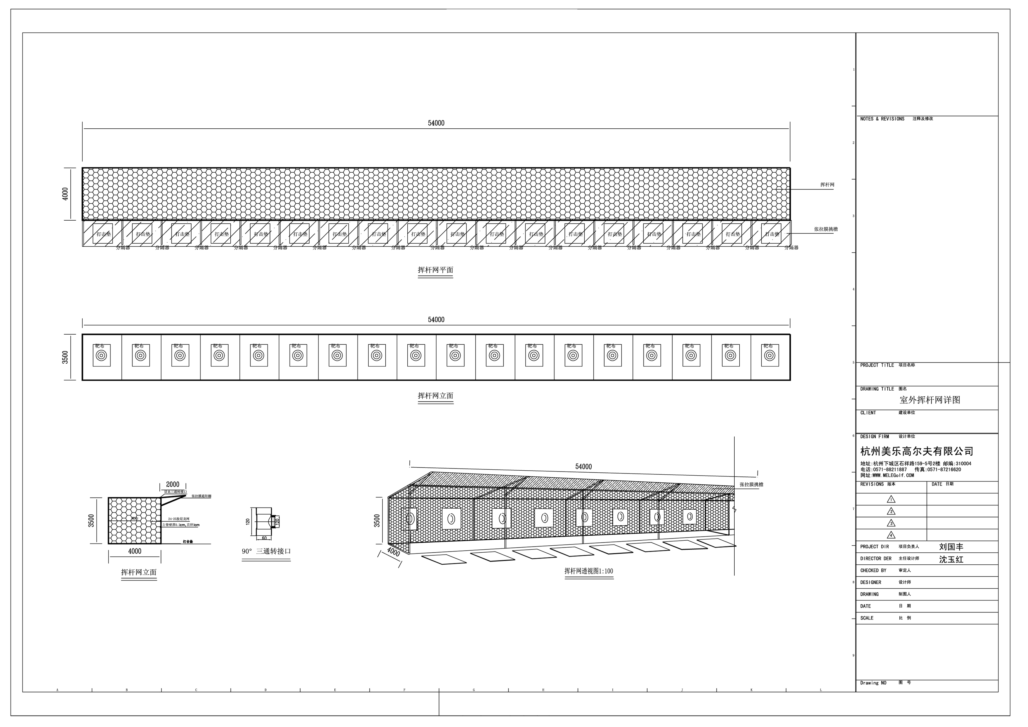
由于排球项目没有人参加活动,紫金港校区西一灯光排球场基本处于闲置状态。为了合理利用有限的场地资源,根据现有场地的条件和学生对项目的需求的调研,经体艺部部务会讨论,拟请专业公司把该场地改造成迷你高尔夫球场(项目方案见附件),预算造价为15万元,现予以公示。公示时间为519日至522日。

如对公示内容有异议,请在公示期内将意见反馈至体艺部办公室。

监督电话:0571-88981308

地址:紫金港体育馆117

附件1:浙大紫金港校区户外挥杆网练习打位效果图

附件2:浙大紫金港校区户外挥杆网尺寸示意图

附件3:浙大紫金港校区户外挥杆网报价清单